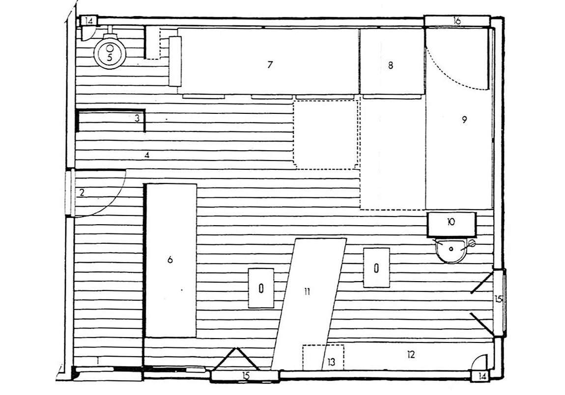
Dissenyada i construïda per Le Corbusier entre el 1951 i el 1952, la popularment coneguda com Cabanon de Vacances és una minúscula construcció localitzada a Roquebrune-Cap-Martin, a la Costa Blava francesa. Amb els seus 3,66m × 3,66m, és considerada com l’exemple mínim del pensament modular i els mètodes de construcció estandaritzada del seu autor, que l’anomenava maison —ja que tenia en compte tot el seu entorn natural.
Contacte
Truca'ns
Escriu-nos
Informació general: info@clasebcn.com
Nous projectes: sandra@clasebcn.com
Treballa amb nosaltres: joinus@clasebcn.com
Visita'ns
Portaferrissa 7, 2-2
08002 Barcelona, Espanya
Veure mapa
Subscriu-te
Si et subscrius a la nostra Newsletter
rebràs de tant en tant informació sobre els projectes que anem realitzant, a més d’una recopilació mensual dels Tips of the Week.
Legal
Podeu llegir la nostra nota legal aquí.
























































